Сайт использует файлы cookie. Cookie запоминают ваши действия и предпочтения для лучшего взаимодействия в Интернете.
Ok

Проект «Великан»

Проект «Великан»

Описание проекта

Описание проекта

Семейная усадьба на горном склоне с домом для постоянного проживания, просторной баней и гаражом

Дом 600 м² | 5 спальни | Баня | Комбинированные технологии

Участок расположен на склоне горы, скальное основание находится близко к поверхности, в нескольких местах на участке есть выходы скал. Перепад высот на участке более 5 метров. Залесенный рельеф требует особенного подхода к сохранению деревьев и защите корневых систем и почвы при строительстве. Использование при отсыпке участка специальных колец для защиты деревьев. Нестандартная и сложная реализация фундамента — необходимость монтажа основного дома на уже имеющийся на участке фундамент. Комбинированный основной дом: канадская рубка и мансардный этаж, выполненный по технологии POST&BEAM, цоколь облицован плитняком. Нестандартный абрис кровли — для каждого конструктивного слоя кровли разработаны детальные монтажные схемы. Просторная баня по технологии «Канадская рубка». Интересная планировка бани с комнатой отдыха, небольшим кинотеатром, зоной барбекю и отдельной топочной.

Уникальный ландшафтный дизайн, главная задача которого — обыграть все перепады высот на участке.

Дизайн-проект усадьбы «Великан» — современнное переосмысление деревенского стиля. Он подходит тем, кто устал от шума и суеты мегаполиса. Стиль кантри создается за счет использования только натуральных материалов в отделке — дерево, камень, кованные элементы. Это же правило касается и мебели — массивная, из натуральных материалов, она идеально вписывается в интерьер. А мягкая мебель и щедро используемый текстиль придают этому деревенскому интерьеру неповторимый шарм. Особо в проекте примечательны детские. Дизайнеру удалось создать комнаты, уникально подходящие каждому ребенку из семьи заказчика, правильно учесть возраст и предпочтения детей, а также сделать пространства детских многофункциональными.

Реализация

Реализация

Дизайн-проект интерьера

Дизайн-проект интерьера

Дерево — материал с большой эстетической составляющей, в дизайн-проекте важно оставить его главным и не перегрузить интерьер.

Округлые формы бревна в этом проекте гармонично сочетаются со строгими линиями, мягкость дерева усиливается использованием теплых природных оттенков в интерьере. Предусмотрено большое количество систем хранения. Закрытые плоскими светлыми фасадами, они не «съедают» пространство и не бросаются в глаза. Идеально организована кухня-гостиная — несущий элемент переруб, соединяющий бревна по длине, становится элементом дизайна. Он разделяет мягкую и обеденную зоны, при этом помещение остается единым просторным пространством.

Этот проект — воплощение эстетики минимализма, мягкий и плавный интерьер, в котором приятно жить. А главное — он абсолютно демократичен с точки зрения стоимости: используются недорогие материалы, мебель, текстиль и предметы интерьера.

Важно понимать, что дизайн-проект не является отдельным и независимым этапом работ, который можно заказать позже. Только комплексный подход позволяет получить идеальное решение и предусмотреть целую массу нюансов.

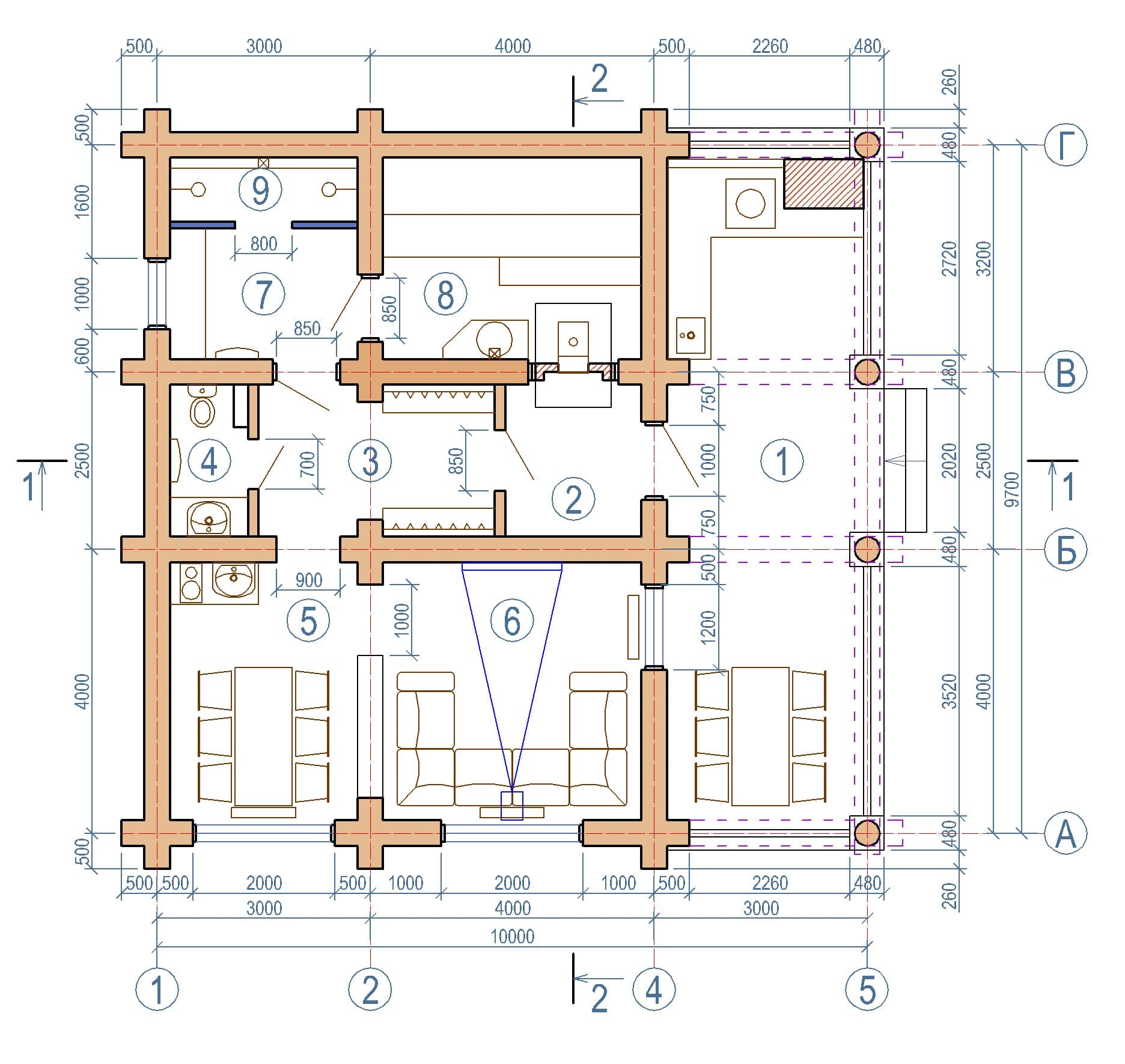
Спецификация помещений

Спецификация помещений

Похожие проекты из категории

Похожие проекты из категории