Сайт использует файлы cookie. Cookie запоминают ваши действия и предпочтения для лучшего взаимодействия в Интернете.
Ok

Проект «River House»

Проект «River House»

Описание проекта

Описание проекта

Сочетать различные технологии в проектах — особая магия, доступная только специалистам, прорабатывающих комплексный проект от, А до Я. В проекте River House мы воплотили мечту хозяев: собственный бассейн или озеро на участке со спа комплексом, включающий в себя несколько комнат для различных процедур и парений. Основным репером в благоустройстве стало озеро с биоплато, соединяющее основной монолитный дом и спа комплекс из дерева ручной рубки.

Современное озеро с биоплато в благоустройстве

Современное инженерное оборудование

Жилая площадь дома - 507 м² | 4 спальни

Площадь SPA-комплекса - 85 м²

Дом площадью 500 кв.м. выполнен в минималистичном стиле с преобладанием изностойких отделочных материалов, которые очень гармонично сочетаются с деревянным строением спа. Большая площадь панорамного остекления, которая выходит по большей части в зону участка, позволила расширить пространство комнат добавив объема всем помещениям, даже сауне.

Технологичная оснастка дома играет большую роль в комфортной жизни заказчиков, поэтому мы предусмотрели комплекс мер для достижения климат-контроля в доме и спа комплексе.

Спецификация помещений

Спецификация помещений

101
102
103
104
105
106
107
108
109
110
Прихожая
Санузел
Кабинет
Хозяйственная
Санузел
Гостиная
Столовая
Кухня
Холл
Котельная
13,49
4,45
21,46
8,90
2,62
50,10
36,90
41,49
40,02
9,43
Этаж 1
228,88
278,89
Этаж 2
201
202
203
204
205
206
207
208
209
210
211
Спальня 2
Холл
Спальня 3
Спальня 4
Спальня 1
Ванная
Ванная
Ванная
Сауна
Ванная
Ванная
33,65
47,97
43,62
42,27
67,49
5,79
15,09
4,67
5,49
5,40
7,45
84,52
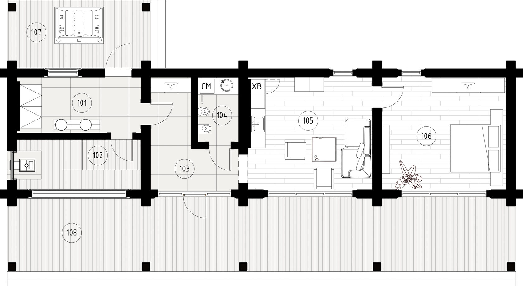
SPA центр
101
102
103
104
105
106
Моечная
Парная
Прихожая
Санузел
Комната отдыха
Спальня
11,52
10,53
11,01
4,49
23,31
23,65

Похожие проекты из категории

Похожие проекты из категории