Сайт использует файлы cookie. Cookie запоминают ваши действия и предпочтения для лучшего взаимодействия в Интернете.
Ok

Проект «Four Elements»

Проект «Four Elements»

Описание проекта

Описание проекта

Идеей в объемно-планировочном решении комплекса стала концепция продуманных сценариев в жизни разных членов семьи и обслуживающего персонала. В планировке прослеживается символ золотого сечения, который имеет смысл гармонии. Гармония жизни в комплексе — стирание грани между участком с благоустройством и продуманной объемно-планировочной структуры дома.

Жилая площадь дома - 650 м.кв.

Площадь спа-комплекса - 105 м.кв.

Площадь террас - 280 м.кв.

5 спален | SPA | кинозал | бассейн

Наш архитектурный проект дома «four elements» общей площадью в 1000 кв.м. в котором основная задача, которую мы решили при проектировании данного комплекса — дать нужный уровень жизни, безопасности и комфорта. Наш проект имеет собственный бункер и лифт.

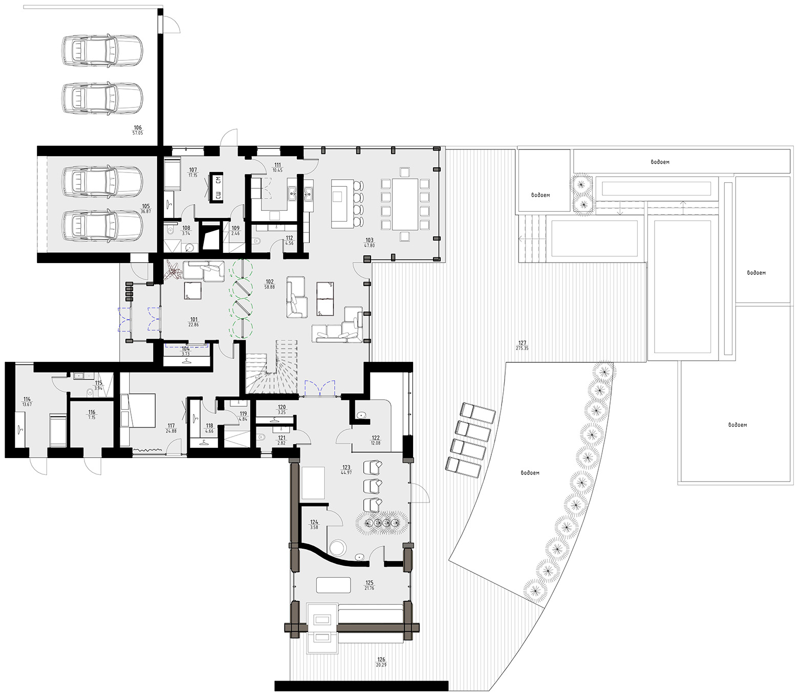
Планировка дома

Планировка дома

Предлагаем погрузиться внутрь комплекса и прочувствовать все прелести комплексного подхода. Объемно-планировочные решения дома можно разделить на несколько зон: зона для обслуживающего персонала с проживанием, зона приема гостей и зона личного пользования.

Блок гувернантки. Мы создали в границах нашего комплекса отдельную зону для гувернантки. Это может быть близкий человек для всей семьи, для которого предусмотрено все необходимое для комфортной жизни: отдельный вход, в который можно попасть через крытую парковку, отдельное помещение для хранения инвентаря, своя комната с окнами на небольшой сад, в котором можно заниматься выращиванием микрозелени или прочих культур.

Распределяя пространство, мы стремились отделить зону обслуживающего персонала от хозяев дома, для персонала существуют свои границы и собственные помещения для полноценной и комфортной жизни.

Для обслуживающей компании и водителя есть свой вход на территорию, который отделен непосредственно от главного входа, инженеры без проблем попадут в служебном помещении. А для отсечения лишних взглядов в ландшафте мы использовали зеленые изгороди, которые формируют барьер.

Пройдя в основной вход в комплекс. Он отделен небольшим внутренним двориком только для хозяев и гостей. Входная группа плавно перетекает в пространство гостиной — это помещение со вторым светом, высота потолка в котором достигает 7 метров. Мы отделили основную гостиную от входной группы декоративными перегородками, которые поворачиваются на 180 градусов и могут полностью изолировать оба помещения для возможных переговоров с партнером по бизнесу. При открытии оба помещения соединяются воедино и создают сквозной красивый тоннель со входа до водоема.

В зоне гостиной есть все для комфортной жизни: мягкая зона с модульным диваном bonaldo, уникальные элементы декора, а так же винтовая лестница, которая станет ярким архитектурным акцентом, ее мы выполняем по особенной технологии, чтоб придать ей легкости и не перенасыщать интерьер ограждениями.

Ее мы выполнили из двух блоков: зона для хранения и готовки, и второй блок — зона для открытого приготовления блюд и вечеров с приглашенным шеф-поваром.

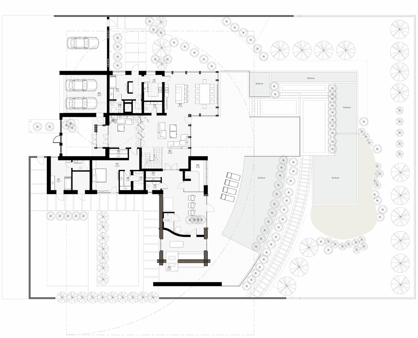
Второй этаж

Второй этаж

Второй этаж мы разделили на две основные части — зона для хозяев дома — в ней большой обособленный блок, в котором располагается основная мастер-спальня с панорамным видом на участок, большой раздельный гардероб для него и для нее с островом для аксессуаров и принадлежностей. В острове хозяин дома может хранить коллекцию часов или уникальных дизайнерских запонок, мы продумали это место углубившись в самые деликатные детали. Большой санузел, отделенный деликатными перегородками, а также в соседних помещениях располагается кинотеатр-кальянная, где можно обсудить рабочие моменты с партнерами или просто провести время в уединении за просмотром хорошего фильма, выпить коллекционный бренди или другой любимый напиток, а также свой личный кабинет с библиотекой и своим лифтом в цокольный этаж.

Цокольный этаж является частью жизни хозяина, в котором расположена доступная только ему покерная комната. Это небольшое изолированное пространство, которое может быть адаптировано под индивидуальные пожелания наших заказчиков.

Вторая часть второго этажа отдана мастер-блокам. Всего их три на этаже — при этом у каждого есть свои особенности, но выполнены они по типу гостиничных блоков — они могут быть трансформированы без особых переделок в необходимые в отделке помещения.

Для удобства и гармоничной жизни мы предусмотрели в холле второго этажа пространство для встреч с детьми, где можно провести время за чтением книг или игрой в приставку. Также мы предусмотрели вторую постирочную на втором этаже, она предполагает возможность стирки и сушки вещей в сушильных шкафах.

Для гостей, которые пришли только в спа-зону, к примеру, для друзей хозяина комплекса, предусмотрен также свой вход сразу в пространство с оздоровительными помещениями, где можно переодеться и насладиться отдыхом. Также отдельно хотелось бы рассказать про спа комплекс в нашем проекте. Представьте себе небольшой оазис, который располагается у вас в доме. В оазисе есть все необходимое для релакса, попадая в главное помещение мы попадаем в зону с панорамным остеклением, стены которого выполнены из многовекового кедра большого диаметра, здесь есть 4 удобных лежака для отдыха после процедур, отдельная душевая за стеклянной стеной, ледогенератор, а также купель с гидро и аэро массажем. Из основного помещения можно также попасть в арома-комнату, в которой можно насладиться восточными процедурами и оздоравливаться при помощи аромамасел и трав. Также помещение может быть использовано как хамам. В нашем комплексе предусмотрена собственная парная, которая может использоваться в разных сценариях — для парений и наслаждением ароматных веников с друзьями, либо для настоящих профессиональных мастер-парений с приглашенным парильщиком. Для него предусмотрено все для удобного проведения процедур.

Один из мастер-блоков имеет собственный выход на эксплуатируемую кровлю спа-комплекса и является игровой зоной с безопасными ограждениями. В каждом мастер-блоке предусмотрена гардеробная и ванная с уникальным интерьером. Данный выход возможно будет расположен в мастер-спальне, мы ведем переговоры с заказчиком по расположению выхода.

Материалы, технологии, фасад

Материалы, технологии, фасад

В нашем проекте мы использовали материалы премиум класса преимущественно натуральные и дорогие материалы, к ним относятся дерево, стекло, металл, керамика, камень, текстиль с качественным составом.

Внешний вид таких материалов сильно отличаться, как и срок службы. Например, даже самая качественная имитации дерева — это всего лишь имитация, и настоящую древесину она будет напоминать только издалека, не говоря уже о тактильных ощущениях.

Использование природных материалов обходится дороже, по сравнению с искусственной отделкой, но результат того стоит — интерьер и фасад обретает особый и уникальный вид.

Концепцией в работе над фасадами дома является принцип удобного и неприхотливого проживания. Не требующие обновления нескольких десятков нет материалы использованы нами в данном проекте. Мы предлагаем несколько вариантов для отделки основных площадей покрытия на выбор: крупноформатный керамогранит «laminam», его мы облицовываем на систему с клеевыми профилями, а также для ценителей натуральный камень, подобранный индивидуально.

Работая над различными технологиями в процессе своего роста мы использовали в проекте рубленые конструкции в спа-комплексе, монолитно-ригельную систему для основных конструкций дома, а также брусовые видовые элементы, в которые интегрировано панорамное остекление. По выбору это может быть стандартных размеров стеклопакеты или джамбо формат до 9 метров. Правильно применяя и сочетая эти сложные конструкции на наш взгляд мы добились баланса в решениях фасадов. Сложный и открытый дворовой фасад с множеством открытых террас и собственным водоемом с естественной фильтрацией воды противопоставлен глухому и закрытому главному фасаду, на втором этаже которого мы использовали автоматические складные жалюзи.

Уникальность такого подхода заключается в возможности выбора различных материалов в разных ценовых категориях и с разным набором характеристик. Мы придерживаемся такого принципа на протяжении реализации всего объема, начиная с фасадов, заканчивая комплектацией интерьеров дома.

Спецификация помещений

Спецификация помещений

709 м²
Этаж 1
101
102
103
104
105
106
107
108
109
110
111
112
114
115
116
117
118
119
120
121
122
123
124
125
126
127
Лобби
Гостиная
Кухня-столовая
Гардероб
Гараж
Навес
Комната гувернантки
Санузел
Комната инвентаря
Постирочная
Кухня-готовочная
Санузел
Комната водителя
Санузел
Теплогенераторная
Спальня гостевая
Гардеробная
Ванная
Гардеробная
Санузел
Арома комната
SPA зона
Моечная
Парная
Зона барбекю
Терраса
23 м²
59 м²
48 м²
4 м²
37 м²
57 м²
10 м²
4 м²
2 м²
7 м²
10 м²
5 м²
14 м²
4 м²
7 м²
25 м²
5 м²
5 м²
3 м²
3 м²
12 м²
45 м²
4 м²
22 м²
20 м²
275 м²
324 м²
Этаж 2
201
202
203
204
205
206
207
208
209
210
211
212
213
214
215
Холл
Кабинет
Кинотеатр
Мастер-спальня 1
Гардеробная
Ванная
Мастер-блок 3
Мастер-спальня 3
Мастер-спальня 2
Мастер-блок 2
Гардеробная
Детская спальня
Ванная
Патио
Постирочная
66 м²
23 м²
22 м²
30 м²
13 м²
13 м²
9 м²
22 м²
30 м²
6 м²
9 м²
30 м²
5 м²
38 м²
8 м²

Похожие проекты из категории

Похожие проекты из категории